A város gépjárműállománya rohamosan növekszik. Az 50-60-as években ennek ténye minimális lehetőség volt, így a városkép „kitalálása” során nem is volt fontos szempont a gépjárművek tömeges elhelyezésének megoldása. Sajnos a 70-80-as évek lakóingatlan fejlesztései során sem foglalkoztak ennél komolyabban a problémával. Ennek eredményeként a parkolási gondok jelen korunk problémája.
2015-ben a Városfejlesztési és Környezetvédelmi Bizottság a közlekedésfejlesztési koncepciója megalkotása során megfogalmazta az „egy lakóingatlan-egy parkoló” elvet, amelynek csak komoly hiányosságok mellett képesek megfelelni az út-járda és parkolófejlesztési koncepció végrehajtása során. Jogos észrevétel, hogy ezek a fejlesztések gyakran a zöldterületek rovására hajthatók végre. Azonban azt is figyelembe kell venni, hogy a város „élhetőségének” egyik fontos kérdése, hogy a közlekedési igények kielégítésének milyen módon képes a városvezetés megfelelni.

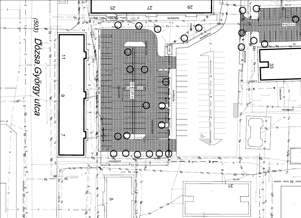
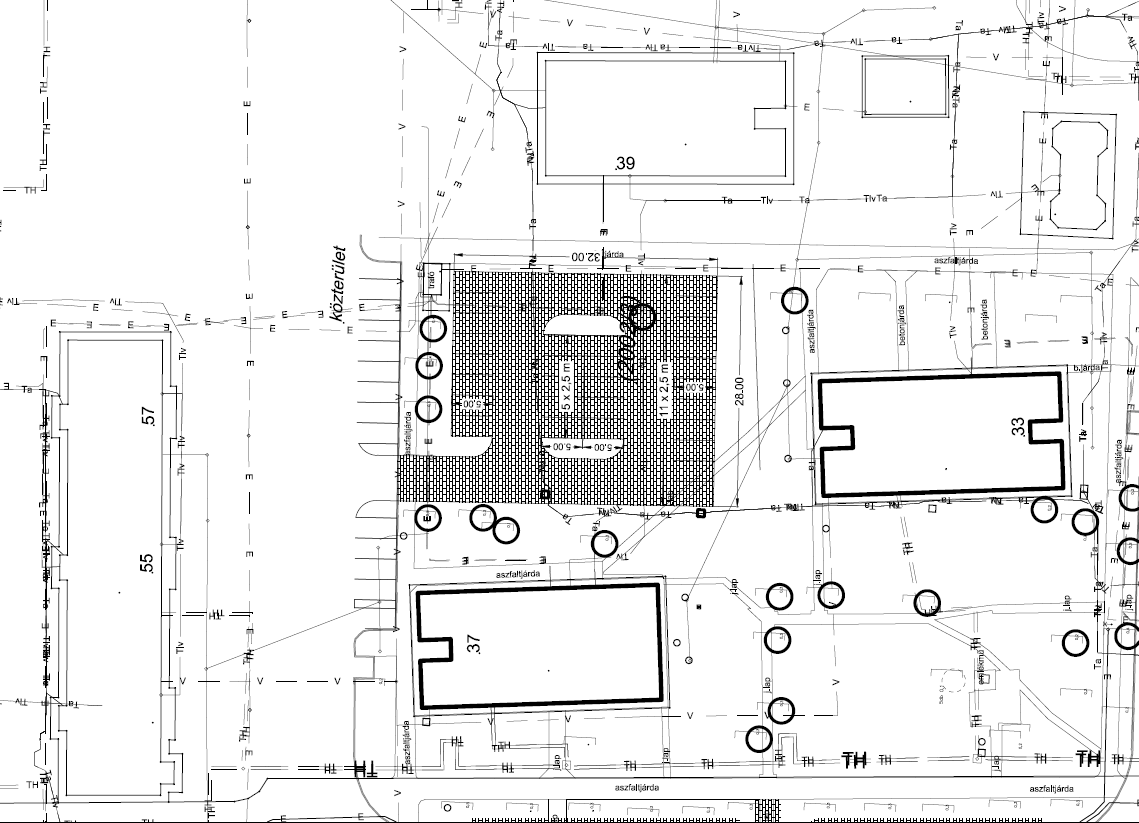
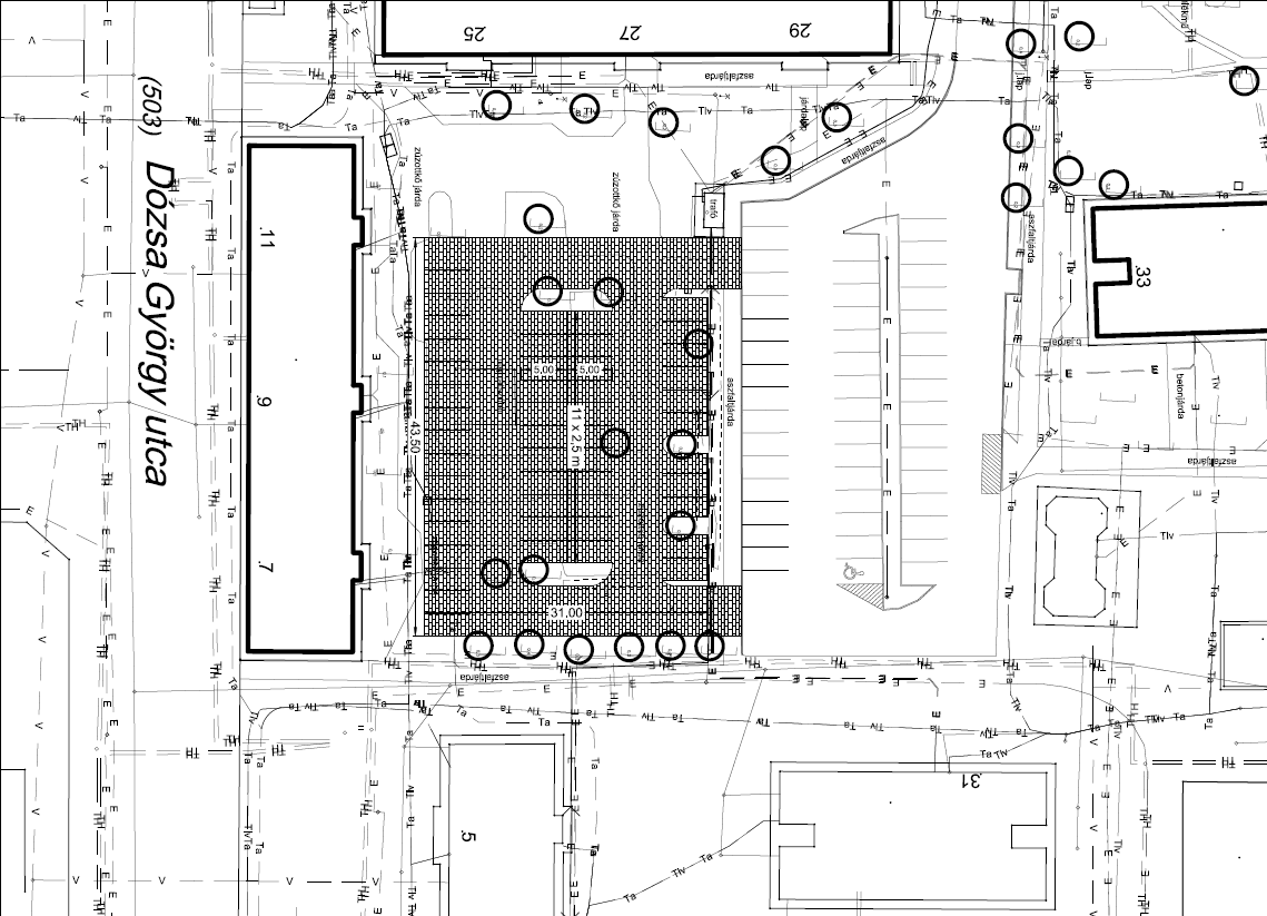
Népekbarátsága utca 25-37 tervezett parkolófejlesztések
Meglátásom szerint erre hívta fel a tavaly év végi parkolófejlesztések kapcsán megerősödött lakossági visszajelzés a tervezett parkolólétesítéseknél. Személyes véleményem, hogy a nagyobb közösségeket érintő „beavatkozásokat” a döntések meghozatala előtt meg kell futtatni a lakosság körében. Lehetőséget kell biztosítani számukra a tervek megismerésére és véleményük ismertetésére. Ennek kíván az önkormányzat képviselő-testülete megfelelni azzal, hogy a Népekbarátsága utcai parkolófejlesztések tényleges tervezésének megkezdése előtt lakossági fórumot hirdet a lehetséges megoldások bemutatása és a fejlesztések támogatottságának megismerése érdekében. A műszaki szakemberek javaslatait
2019. április 1-én 17.00 órakor
ismerhetik meg az érdeklődők. Ezt követően elmondhatják javaslataikat, észrevételeiket a Polgármesteri Hivatal I. emeleti tárgyalójában.
A fejlesztéssekkel érintett területek
- 1. Népekbarátsága 25-27-29 és Dózsa 7-8-11 mögött: Terv-1, Terv-2, Terv-3
- 2. Népekbarátsága 33 mögött: Terv-1
- 3. Népekbarátsága 37 előtt: Terv-1, Terv-2, Terv-3
- 4. Brunszvik óvoda mellett: Terv-1




